Alles wat u moet weten over een NeHoBo vloer: wat betekent dit voor uw woning?
Een NeHoBo vloer is een betonnen begane grond vloer die veel voorkomt in woningen uit de jaren ’50, ’60 en ’70. Vaak wordt pas duidelijk dat u zo’n vloer heeft wanneer u wilt verduurzamen, isoleren of vloerverwarming overweegt. Vaak blijkt de NeHoBo vloer dan een beperkende factor.
Door te begrijpen wat een NeHoBo vloer is en welke gevolgen dit heeft voor comfort en energieverbruik, kunt u een weloverwogen keuze maken voor het herstellen of vervangen van uw vloer.
Wat is een NeHoBo vloer?
Een NeHoBo vloer is een prefab betonnen vloer met holle elementen, geplaatst boven een kruipruimte. De vloer ligt op de funderingsbalken en vormt de volledige begane grond vloer van de woning. In de tijd waarin deze vloeren werden toegepast, gold prefab beton als een vooruitstrevende oplossing.
Constructief zijn veel NeHoBo vloeren nog steeds sterk. Wat ontbreekt, zijn eigenschappen die in deze tijd essentieel zijn: goede isolatie, luchtdichtheid en geschiktheid voor moderne installaties. Daardoor voldoet de vloer vaak niet meer aan de huidige woon- en duurzaamheidseisen.

NeHoBo vloer in de praktijk
Waarom en wanneer werd een NeHoBo vloer toegepast?
NeHoBo vloeren werden vooral toegepast tussen circa 1955 en begin jaren ’80, in de periode na de Tweede Wereldoorlog. De focus lag in deze tijd op snelle woningbouw, efficiëntie en seriematige productie. Prefab beton maakte het mogelijk om snel grote aantallen woningen te realiseren.
Energieprijzen waren laag en comfort speelde geen belangrijke rol. Isolatie en luchtdichting maakten daarom nauwelijks deel uit van het ontwerp. Dat verklaart waarom deze vloeren vandaag de dag vaak problemen veroorzaken bij renovatie en verduurzaming.
Wat waren de voordelen van een NeHoBo vloer?
Voor die tijd bood de NeHoBo vloer duidelijke voordelen. De vloer was sterk, onderhoudsarm en ongevoelig voor houtrot, in tegenstelling tot houten balklagen. Ook bood het systeem een stabiele en uniforme basis voor woningbouw.
Deze voordelen verklaren waarom de NeHoBo vloer zo veelvuldig is toegepast. In de huidige bouwpraktijk wegen ze echter minder zwaar dan comfort, energieprestatie en toekomstbestendigheid.
Wat zijn de nadelen van een NeHoBo vloer?
De nadelen van een NeHoBo vloer wegen echter steeds zwaarder. De vloer is veelal niet geïsoleerd waardoor veel warmte verloren gaat via de begane grond. Dit zorgt voor koude vloeren en een hogere energierekening.
Ook is de vloer niet luchtdicht. Tocht en vocht uit de kruipruimte kunnen de woning binnendringen, wat het wooncomfort aanzienlijk verlaagt. Wie een NeHoBo vloer wil isoleren, loopt bovendien tegen beperkingen aan door de constructie en de beschikbare kruipruimte.
Ook veroudering speelt een rol. Door vochtbelasting en jarenlang gebruik kunnen scheuren of andere degradaties ontstaan. Dat betekent niet dat elke NeHoBo vloer onveilig is, maar wel dat herstel of vervanging steeds vaker noodzakelijk wordt.
De problemen van een NeHoBo vloer
Bij een deel van de bestaande NeHoBo-vloeren kan na verloop van tijd aantasting van de constructie optreden. Dit heeft vaak te maken met de samenstelling van de metselspecie die destijds werd gebruikt bij de productie van de vloeren. In sommige gevallen werden chloriden toegevoegd om het uithardingsproces van de mortel te versnellen.
Onder invloed van vocht kan deze samenstelling ervoor zorgen dat de cementsteen sneller carbonateert. Hierdoor wordt het materiaal minder basisch en neemt de porositeit toe. Dit proces kan uiteindelijk leiden tot corrosie van de stalen wapening in de vloer.
Wanneer de wapening begint te roesten, zet het staal uit. Deze uitzetting kan de omliggende mortel en bouwstenen beschadigen, waardoor de sterkte en stijfheid van de vloerconstructie geleidelijk afnemen. Vooral bij vloeren boven een vochtige kruipruimte kan dit proces versneld optreden, omdat vocht een belangrijke rol speelt bij corrosie van staal.
De problematiek bij verouderde NeHoBo-vloeren vertoont overeenkomsten met bekende betonrotproblemen zoals bij Kwaaitaal- en Mantavloeren, waarbij eveneens aantasting van de wapening een rol speelt (betonrot).
Waarom een NeHoBo vloer isoleren vaak niet voldoende is
Het isoleren van een NeHoBo vloer aan de onderzijde kan tijdelijk verbetering geven, maar lost het kernprobleem zelden volledig op. De vloer blijft zwaar, onvoldoende luchtdicht en niet geschikt voor vloerverwarming of lage-temperatuurverwarming.
Daarnaast zijn de mogelijkheden sterk afhankelijk van de kruipruimte en de staat van het beton. Voor wie inzet op langdurig comfort en verduurzaming, blijkt alleen isoleren vaak een tussenoplossing.
Wanneer moet ik een NeHoBo vloer herstellen of vervangen?
Het herstellen of vervangen van een NeHoBo vloer is verstandig wanneer de woning structureel koud aanvoelt, de energiekosten hoog blijven of verduurzamingsmaatregelen moeilijk uitvoerbaar zijn. Ook bij plannen voor vloerverwarming of een warmtepomp vormt de bestaande vloer vaak een knelpunt.
Steeds meer woningeigenaren en woningcorporaties kiezen ervoor om de basis in een keer goed te renoveren, in plaats van blijven aanpassen aan een oude constructie.
NeHoBo vloer vervangen met Combifor FIX beton
Bij het vervangen van een NeHoBo vloer is een traditionele betonvloer vaak geen ideale oplossing. Deze is zwaar en belast de fundering extra, wat bij oudere woningen risico’s kan geven.
Met Combifor FIX beton biedt Duofor een bewezen lichte renovatieoplossing. Deze vloer bestaat uit lichtgewicht stalen liggers, met daartussen EPS vulelementen voor isolatie afgestort met beton. Hierdoor ontstaat een sterke, stijve en duurzame vloer zonder onnodige belasting van de bestaande fundering.
.jpg)
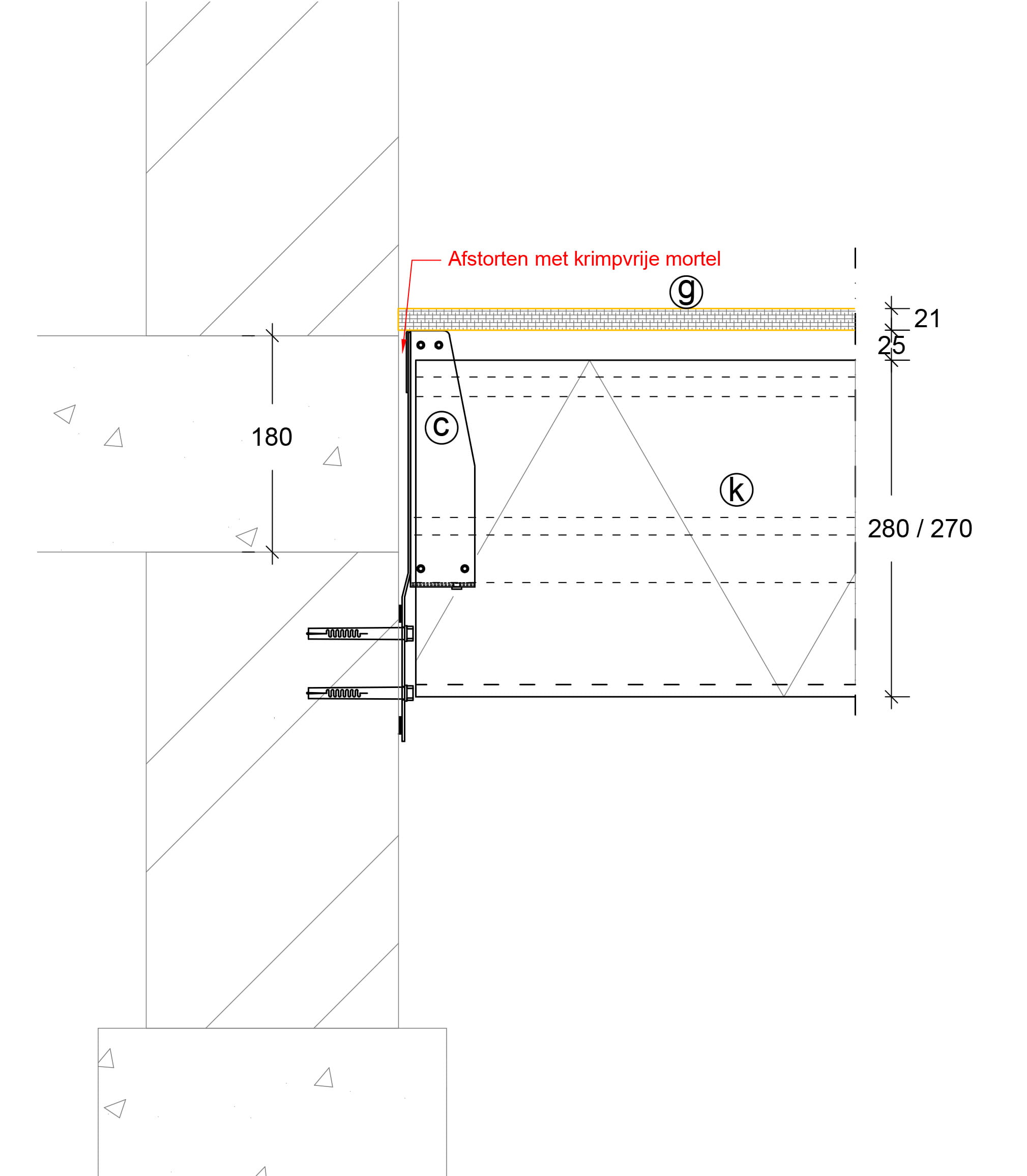
Technisch detail verhoogd muurprofiel
Uniek: verhoogd muurprofiel voor perfecte aansluiting
Wat Combifor FIX onderscheidt, is de optie voor een verhoogde muurprofiel. Dit profiel maakt het mogelijk om hoogteverschillen eenvoudig op te vangen en de vloer perfect aan te sluiten op bestaande wanden. Hierdoor is het systeem uitermate geschikt voor het vervangen van een NeHoBo vloer, ook bij ongelijkmatige situaties of renovaties in bewoonde woningen. Wanneer de oude vloer weggezaagd wordt, zitten er vaak nog sparingen of beschadigingen ter plaatse van de oude bouwmuren. Door het gebruik van het hoge muurprofiel creëren gelijk als het ware een ‘verloren bekisting’, hierdoor stabiliseren we de oude bouwmuren en zorgen we voor een nieuwe en stabiele basisvloer met een hoge isolatie waarde.
Het resultaat is een luchtdichte, stabiele vloer die direct geschikt is voor vloerverwarming en verdere verduurzaming.
.jpg)
Oude inkassingen bij een NeHoBo vloer

Verhoogd muurprofiel toegepast
Combifor FIX is de toekomstbestendige opvolger van de NeHoBo vloer
De NeHoBo vloer is een product van naoorlogse bouw. De Combifor FIX is ontwikkeld met de eisen die nu belangrijk zijn. De vloer is sterk, duurzaam en biedt een hoge mate van comfort. Dankzij de constructieve stijfheid blijft de afwerking strak en scheurvrij, ook bij intensief gebruik.
Daarnaast vormt de vloer een solide basis voor energiezuinige installaties en draagt hij bij aan een lagere milieubelasting.
Advies door Duofor bij een NeHoBo vloer
Een NeHoBo vloer vormt in veel woningen de grootste belemmering voor comfort en energiebesparing. Daarom is een goede beoordeling essentieel.
Duofor kijkt naar de bestaande situatie, de fundering en uw toekomstplannen. Op basis daarvan adviseren wij of een NeHoBo vloer herstellen volstaat, of dat vervanging met Combifor FIX de meest duurzame keuze is.
Wilt u weten wat in uw situatie de beste oplossing is? Neem gerust contact met ons op voor advies.